Hakkımızda
Projeler
Blog
İletişim
İletişim
0
No products in the cart.
Submit
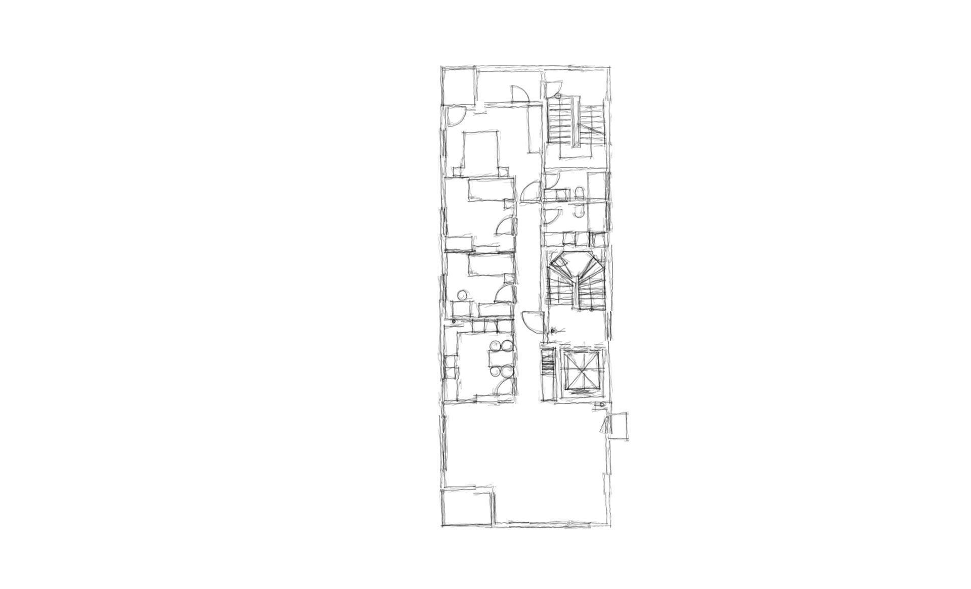
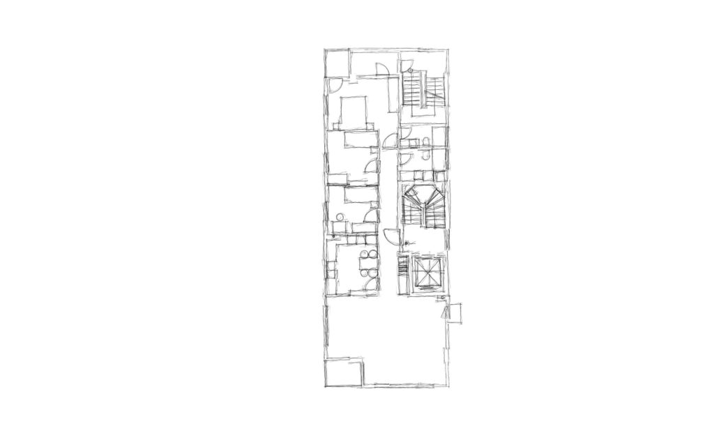
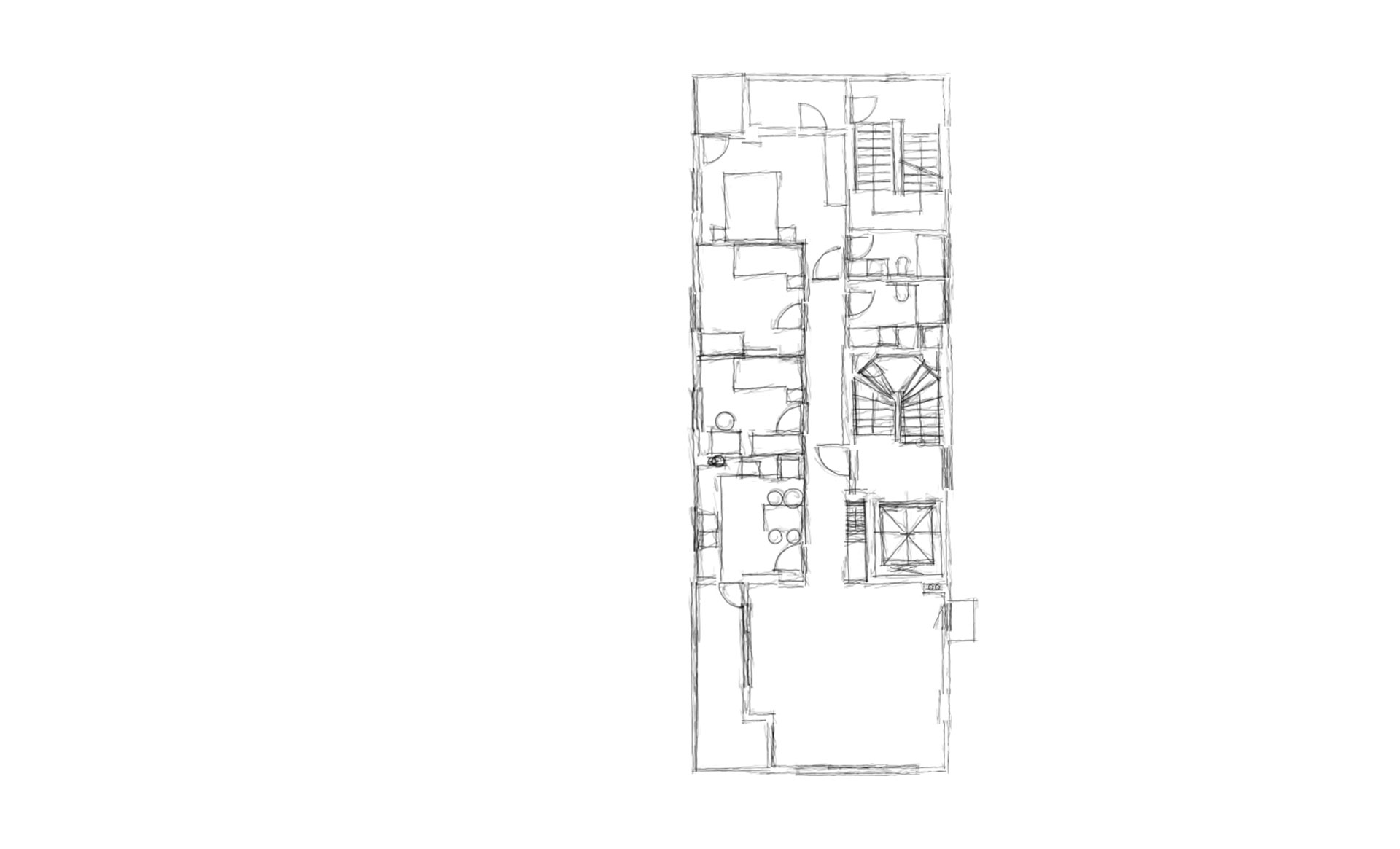
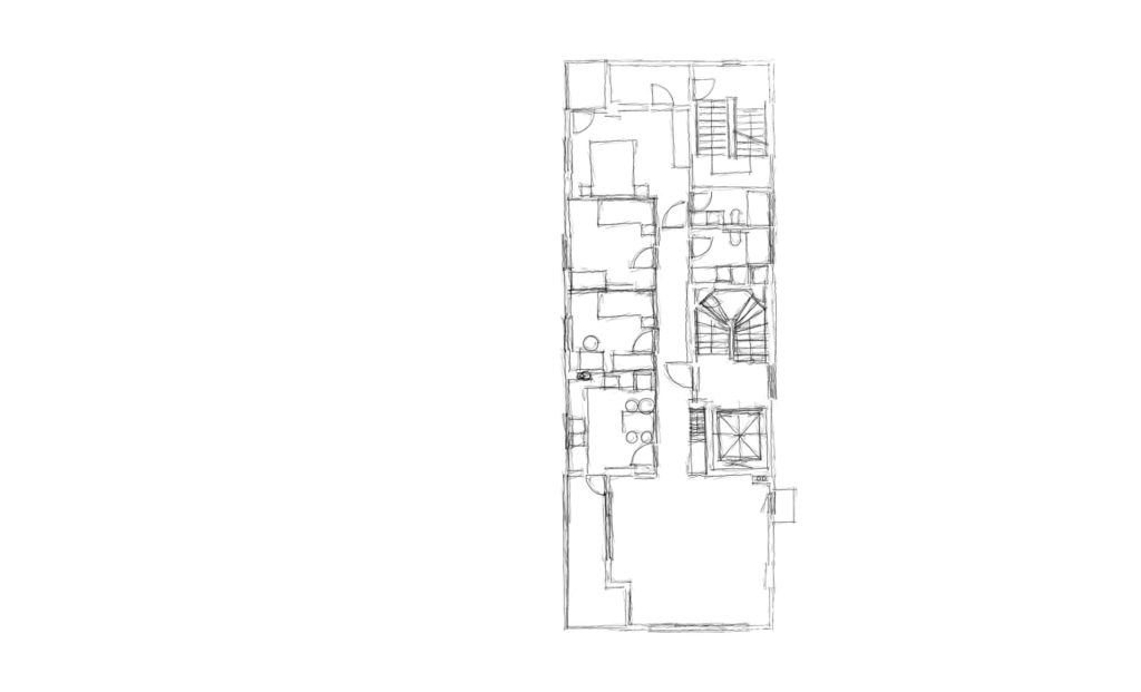
Erenköy
Erenkoy
Previous project
All projects